ロータリースプリングに触れたシールの中には、主に2つのタイプがあります。RC2055とRC2056です。 Ruichen Sealsは、長年にわたってシール製品の開発と製造を研究してきました。さまざまな状況やさまざまなニーズによれば、より詳細なデザインを完成させました。
RC2055はロータリーパンプラグシール、RC2055-Bは回転歯シール、RC2055-Cは回転式Y型の組み合わせシールです。 3つの溝は交換可能です。それらは、回転シャフトに適用される一方向の圧力を伴う高機能シールです。その中で、RC2055ロータリーパンプラグシールは、ステンレススチールスプリングと高機能プラスチックで構成されています。 RC2055-BおよびRC2055-Cを使用する場合、一致するエラストマー材料を合理的に選択する必要があります。
RC2056はロータリーパンプラグシールであり、RC2056-Bは回転式Y型の組み合わせシールです。溝は交換することもできます。また、回転シャフトでの使用にも適しています。その中で、RC2056ロータリーパンプラグシールは、ステンレススチールスプリングと高機能プラスチックで構成されています。 RC2056-Bを使用する場合、一致するエラストマー材料を合理的に選択する必要があります。
製品機能とアプリケーション:
製品機能:
高性能:ステンレススチールスプリングと高機能プラスチックを組み合わせて、優れたシーリングパフォーマンスと耐久性を確保します。
交換可能性:シリーズの製品の溝設計は同じであり、さまざまな労働条件への交換性と柔軟な適応を可能にします。
広く適用可能:多様な産業ニーズを満たすために、回転シャフトの一元配置圧力シーリングに適しています。
オプションのエラストマー:RC2055-B、RC2055-C、RC2056-Bは、適応性を改善するための労働条件に応じて、マッチングエラストマー材料の選択をサポートします。
アプリケーションシナリオ:
回転シャフトの一元配置圧力シーリングは、産業機器、エンジニアリング機械、油圧システムなどに適しています。
石油化学、エネルギー装備、重機など、高機能シーリングが必要な場合。
技術的な利点:
ステンレススチールスプリングは、長期のシーリング効果を確保するために安定した放射状の力を提供します。
高機能プラスチックとエラストマー材料の組み合わせは、高圧と高速作業条件に適しています。
溝の交換可能な設計により、インストールとメンテナンスが簡素化され、使用コストが削減されます。
使用法の提案:
特定の労働条件に応じて、適切なシールモデルとエラストマー材料を選択します。
シールの損傷を避けるために、設置中に溝がきれいであることを確認してください。
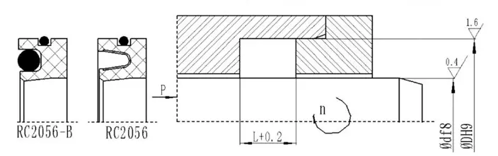
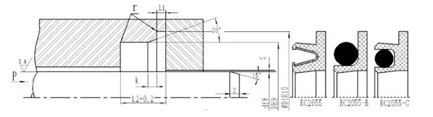
RC2055
該当する労働条件(制限値が同時に表示されないでください)
| プレッシャー (MPA) | 温度 (℃) | スピード (MS) | 中くらい | |||
| ≤35 | RC2055 | RC2055-B/C | RC2055 | RC2055-B | RC2055-C | ほとんどすべての液体およびガス媒体 |
| -200〜+250 | -35〜+250 | <2m/s | <6m/s | <2m/s | ||
材料の選択
1.一致するOリング材料を選択できます:RO1ニトリルラバー(NBR)、RO2 FluorOrubber(FKM)など。
2。シーリングリング材料:PTFE1、PTFE2、PTFE3、PTFE4、UPE、PK1、PK2など。
3。ステンレス鋼のスプリング:V字型スプリング。
注文例
RC2055- 40-PTFE4+Vシャフト直径40、シーリングリング材料はPTFE4、ステンレス鋼のスプリングはV字型の春です
RC2055-B-40-PTFE4+R02シャフトの直径は40、シーリングリング材料はPTFE4、O-ringはfluorOrubberです
RC2055-C-40-PTFE4+R02シャフト直径は40、シーリングリング材料はPTFE4、O-ringはfluorOrubberです
仕様パラメーターテーブル(パラメーター範囲内のすべての仕様が利用可能です)
| ロッドの直径の範囲 D F8 | 溝の直径 DH9 | 溝直径D1H10 | エッジの深さ L1 | 溝の幅 l | 輸入面積k | 放射状クリアランス s max | 面取りの長さ | r マックス | |
| 10mpa | 20MPA | ||||||||
| 5〜19.9 | D+5 | D+9 | 0.85 -0.1 | 3.6 | 0.3 | 0.15 | 0.1 | zmin = 0.8l | 0.8 |
| 20〜39.9 | D+7 | D+12.5 | 1.35 -0.15 | 4.8 | 0.4 | 0.20 | 0.15 | 1.1 | |
| 40〜400.9 | D+10.5 | D+17.5 | 1.8 -0.2 | 7.1 | 0.5 | 0.25 | 0.20 | 1.4 | |
| 401〜1500 | D+14 | D+22 | 2.8 -0.2 | 9.5 | 0.5 | 0.30 | 0.25 | 1.6 | |
注:回転シャフトの表面硬度は、HRC≥58であることをお勧めします。
RC2056
該当する労働条件(制限値が同時に表示されないでください)
| プレッシャー (MPA) | 温度 (℃) | スピード (MS) | 中くらい | ||
| ≤2 | RC2056 | RC2056-B | RC2056 | RC2056-B | ほとんどすべての液体およびガス媒体 |
| -200〜+250 | -35〜+250 | <14m/s | <6m/s | ||
材料の選択
1.一致するOリング材料を選択できます:RO1ニトリルラバー(NBR)、RO2 FluorOrubber(FKM)など。
2。シーリングリング材料:PTFE1、PTFE2、PTFE3、PTFE4、UPE、PK1、PK2など。 3。ステンレス鋼のスプリング:V字型スプリング。
注文例
RC2056-40*62*8-PTFE4+V D*D*L、シーリングリング材料はPTFE4であり、ステンレス鋼のスプリングはV字型のスプリングです RC2056-B-40*62*8-PTFE4+R02 D*D*L、シーリングリング材料はPTFE4であり、一致するOリングはFluorUbberです



















住所
中国山東省青島市城陽区東流亭工業団地瑞城路1号